Laadukkaat suunnittelupalvelut säästävät kustannuksia
Keskipohjanmaan alueella toimiva LVI-More Oy tarjoaa laadukasta ja kattavaa LVIS-suunnittelupalvelua. Suunnittelupalvelun ohella tarjoamme myös kaikkien LVIS-töiden toteutukset. Voit tilata meiltä pelkän suunnittelun, suunnittelun ja toteutuksen tai vaikka vain jonkun tietyn osan toteutuksen. Hyvin tehty suunnitelma säästää aikaa, materiaalia ja kustannuksia.
Sähkösuunnittelu ja asennuspalvelut
Laadukkaasti toteutettu sähkösuunnittelu ennakoi energiankulutuksen, sähköjärjestelmien käyttömukavuuden ja asumisen viihtyisyyden. Hyvällä suunnittelulla saavutetaan kustannussäästöjä jo asennusvaiheessa. Ammattilaisen tekemällä suunnitelmalla saavutetaan käyttäjän kannalta paras mahdollinen lopputulos.
LVI-More Oy tekee laadukkaan ja kattavan sähkösuunnitelman lisäksi myös muut sähkötyöt aina asennuksesta korjaukseen.
Lisätietoja:
Matti Isosaari
040 1520663
sahko@lvimore.fi
Ammattitaitoista LVIS-suunnittelua asiakasta kuunnellen
LVI-More Oy tekee ja toteuttaa kohteen vaatimat LVI-suunnitelmat. Laadukkaasti toteutettu LVI-suunnitelma säästää rakentajan aikaa ja rahaa. Suunnitelmat laaditaan asiakkaan toiveita ja tarpeita kuunnellen, huomioiden samalla myös asennuksessa saavutettavat mahdolliset kustannussäästöt sekä muut LVIS-suunnitelmat.
Uudistuotannon lisäksi teemme suunnitelmat myös korjauskohteisiin kiinteistöt ja korjattavat tilat huomioiden. Suunnittelussa pyrimme löytämään aina asiakkaalle kokonaisedullisimmat ja toimivimmat vaihtoehdot.
Ota yhteyttä kun suunnittelet uutta tai korjaat vanhaa.
Tero Maanselkä
067 779 6310
tero.maanselka@lvimore.fi
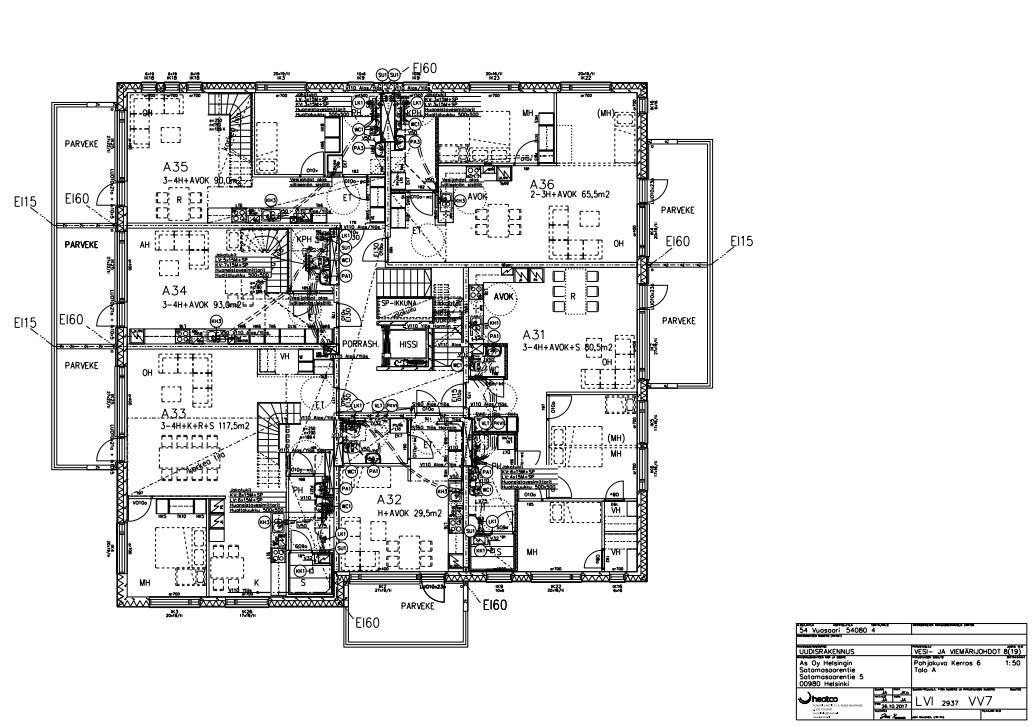
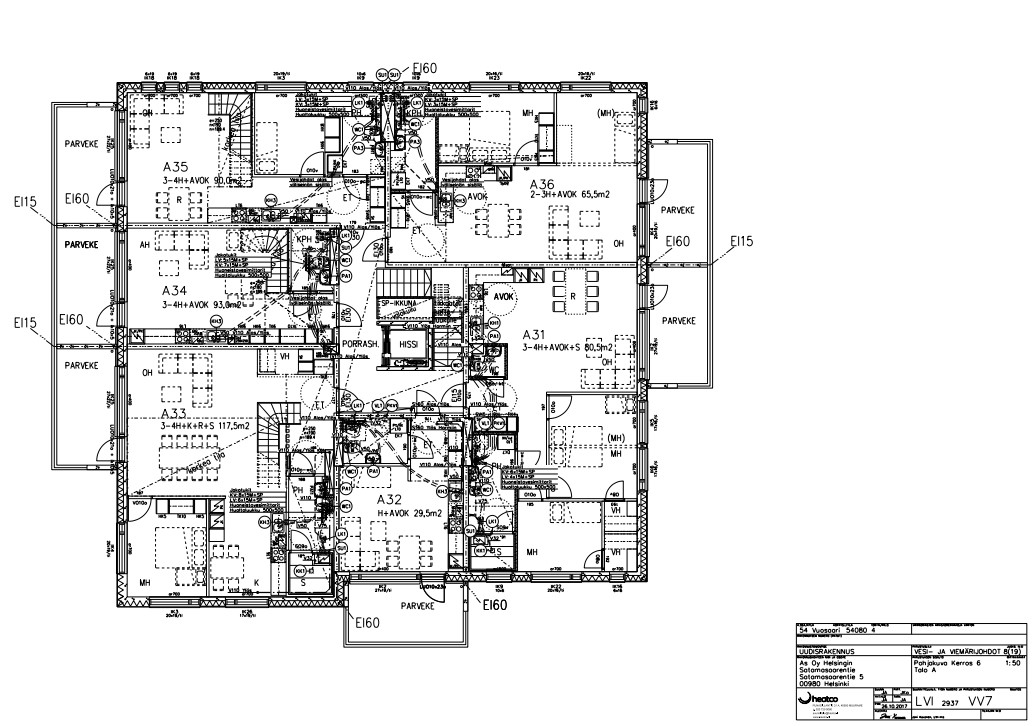
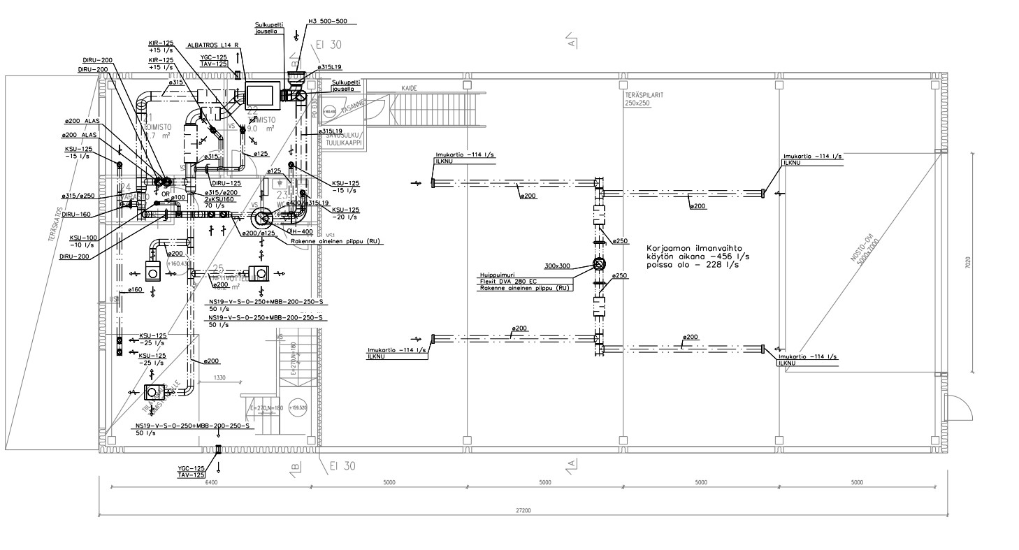
Katso esimerkkejä suunnittelukuvista
Olemme toteuttaneet esimerkiksi seuraavanlaisia töitä:
- Vesi- ja viemärisuunnittelu
- Jätevesisuunnittelu
- Ilmanvaihtosuunnittelu
- Kaukolämmön urakointikuvat
- Lattialämmityssunnittelu



















